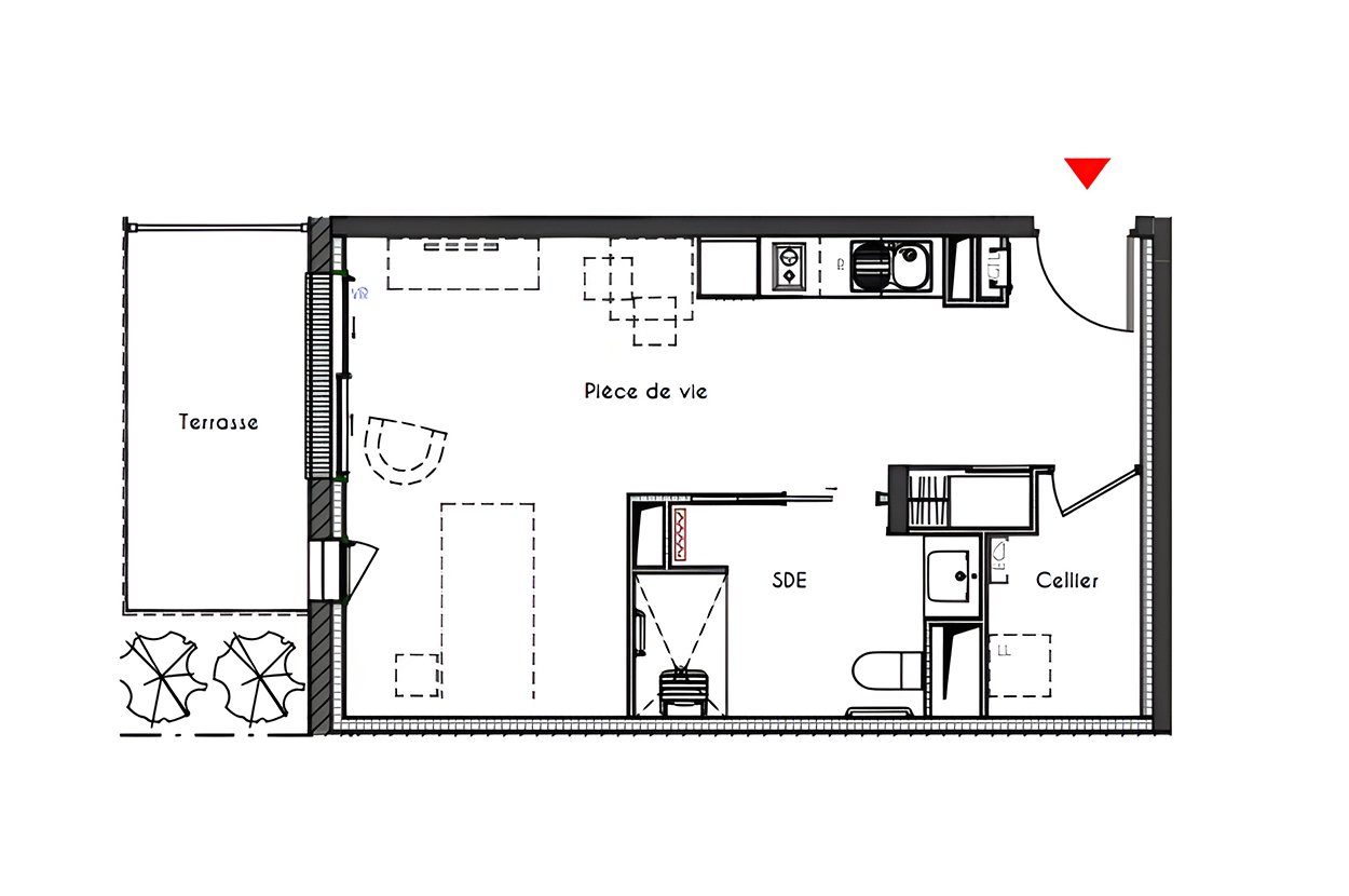
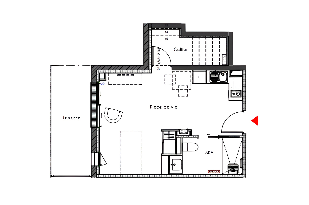
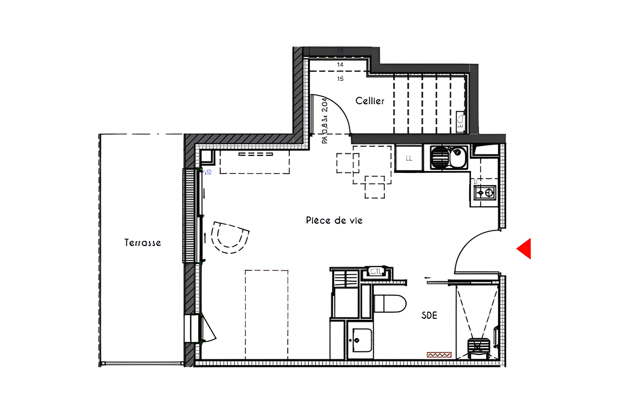
Logement type

au sein de la résidence Marquezine


20 logements pour personnes âgées de + 65 ans et/ou personnes en situation de handicape répartis sur 3 niveaux (R+2) :

  • 2 T1 Bis d’environ 30 m² avec une terrasse de 7 m²
  • 1 T3 familiale d’environ 60 m² avec une terrasse de 16 m²
  • 3 T1Bis entre 30 et 50 m²
  • 15 T1 d’environ 27 m²
Contactez-nous

Tous les logements sont équipés d’un
cellier entre 2 et 8 m²

Charpente Côte basque, Charpente Saint Jean de Luz, Charpente Saint Pée sur Nivelle, Couverture Côte basque, Couverture Saint Jean de Luz, Couverture Saint Pée sur Nivelle, Pose de Velux Côte basque, Pose de Velux Saint Jean de Luz, Pose de Velux Saint Pée sur Nivelle, Rénovation Toiture Côte basque, Rénovation Toiture Saint Jean de Luz, Rénovation Toiture Saint Pée sur Nivelle, Zinguerie Côte basque, Zinguerie Saint Jean de Luz, Zinguerie Saint Pée sur Nivelle
Charpente Côte basque, Charpente Saint Jean de Luz, Charpente Saint Pée sur Nivelle, Couverture Côte basque, Couverture Saint Jean de Luz, Couverture Saint Pée sur Nivelle, Pose de Velux Côte basque, Pose de Velux Saint Jean de Luz, Pose de Velux Saint Pée sur Nivelle, Rénovation Toiture Côte basque, Rénovation Toiture Saint Jean de Luz, Rénovation Toiture Saint Pée sur Nivelle, Zinguerie Côte basque, Zinguerie Saint Jean de Luz, Zinguerie Saint Pée sur Nivelle
Charpente Côte basque, Charpente Saint Jean de Luz, Charpente Saint Pée sur Nivelle, Couverture Côte basque, Couverture Saint Jean de Luz, Couverture Saint Pée sur Nivelle, Pose de Velux Côte basque, Pose de Velux Saint Jean de Luz, Pose de Velux Saint Pée sur Nivelle, Rénovation Toiture Côte basque, Rénovation Toiture Saint Jean de Luz, Rénovation Toiture Saint Pée sur Nivelle, Zinguerie Côte basque, Zinguerie Saint Jean de Luz, Zinguerie Saint Pée sur Nivelle

20 logements
pour personnes âgées et/ou en situation de handicap

5 logements
pour adultes handicapés déja reservés

5 logements pour
jeunes ~ 20m²